Na prodaju jednosoban stan u izgradnji, idealan za život ili investiciju. Nalazi se u modernoj stambenoj zgradi čiji je završetak planiran za septembar 2027. godine. Projektovan je sa savremenim dizajnom i funkcionalnim rasporedom prostorija. Kupovina u fazi izgradnje pruža mogućnost povoljnije cijene i fleksibilnosti u načinu plaćanja.
Stan
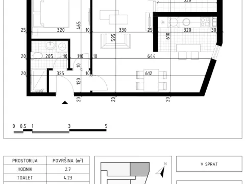
70m²
1
1
Zabjelo
Zabjelo, Podgorica
124,000 €
1,771 € po m²
Agencija
MASTER Real EstateCijena po m²: 1771.43 €
Učešće 24,800 €
Da li ispunjavate uslove za ovaj kredit?
Saznajte za manje od 1 minut — besplatno i bez obaveza

Napomena: Ova kalkulacija je informativna. Stvarni uslovi kredita mogu varirati u zavisnosti od banke, kreditnog rejtinga i drugih faktora. Konsultujte se sa bankom za tačne uslove.
Cijena ove nekretnine je 0% viša od prosječne cijene jednosobnog stana na lokaciji Podgorica
Prosječna cijena: 0.00 €/m²
Ova nekretnina je 0% veća od prosječne veličine jednosobnog stana na lokaciji Podgorica
Prosječna veličina: 0 m²
Agencija (posrednik)
MASTER Real Estate
Registarski broj
-
Lokacija
Podgorica
Zabjelo
Kvadratura
70m²
Struktura
1 Sobe
Tip nekretnine
Stan
Ove informacije su obavezne prema Zakonu o posredovanju u prometu i zakupu nepokretnosti Crne Gore. Svi posrednici moraju biti upisani u Registar posrednika koji vodi nadležno ministarstvo.
Posjedujte ovu nekretninu već od
Fiksne kamate od: 4%
Da li ispunjavate uslove za ovaj kredit?
Saznajte za manje od 1 minut — besplatno i bez obaveza
U saradnji sa

Zabjelo
Zabjelo
Zabjelo
Zabjelo
Zabjelo
Zabjelo
Zabjelo
Zabjelo
Zabjelo
Zabjelo