Stan
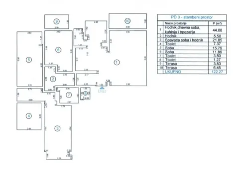
122m²
3
0
Centar
Centar, Podgorica
370,000 €
3,033 € po m²
Agencija
Kvadrat nekretnine

Cijena po m²: 3032.79 €
Učešće 74,000 €
Napomena:
Ova kalkulacija je informativna. Stvarni uslovi kredita mogu varirati u zavisnosti od banke, kreditnog rejtinga i drugih faktora. Konsultujte se sa bankom za tačne uslove.
Cijena ove nekretnine je 24.41% viša od prosječne cijene trosobnog stana na lokaciji Centar
Prosječna cijena: 2437.83 €/m²
Ova nekretnina je 10.58% veća od prosječne veličine trosobnog stana na lokaciji Centar
Prosječna veličina: 110 m²
Agencija (posrednik)
Kvadrat nekretnine
Registarski broj
-
Lokacija
Podgorica
Centar
Kvadratura
122m²
Struktura
3 Sobe
Tip nekretnine
Stan
Ove informacije su obavezne prema Zakonu o posredovanju u prometu i zakupu nepokretnosti Crne Gore. Svi posrednici moraju biti upisani u Registar posrednika koji vodi nadležno ministarstvo.
Centar
Centar
Centar
Centar
Centar
Centar
Centar
Centar
Centar
Centar