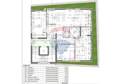
Trosoban stan površine 97m2 u izgradnji je na prodaji u Baru,
U neposrednoj blizini strogog centra.
Stanu pripada terasa dodatne kvadrature 23m2, koja omogućava dodatni komfor i pogled na luku Bar.
Strukturu stana čine: ulazni hodnik, dnevni boravak, kuhinja i trepezarija, tri spavaće sobe,od kojih je jedna sa gardaroberom, kupatilo i toalet sa vešerajem.
Stan se nalazi na šestom spratu i predstavlja pent-house ovog objekta.
Opciono kupovina garažnog mjesta po cijeni od 15000€.
Rok za useljenje i završetak radova je 6 mjeseci.
Stan
97m²
N/A
N/A
Centar
Centar, Bar
2,000 €
21 € po m²
Agencija
RemaxCijena po m²: 20.62 €
Učešće 400 €
Da li ispunjavate uslove za ovaj kredit?
Saznajte za manje od 1 minut — besplatno i bez obaveza

Napomena: Ova kalkulacija je informativna. Stvarni uslovi kredita mogu varirati u zavisnosti od banke, kreditnog rejtinga i drugih faktora. Konsultujte se sa bankom za tačne uslove.
Cijena ove nekretnine je 99.23% niža od prosječne cijene garsonjere stana na lokaciji Centar
Prosječna cijena: 2679.11 €/m²
Ova nekretnina je 53.43% veća od prosječne veličine garsonjere stana na lokaciji Centar
Prosječna veličina: 63 m²
Agencija (posrednik)
Remax
Registarski broj
-
Lokacija
Bar
Centar
Kvadratura
97m²
Struktura
N/A
Tip nekretnine
Stan
Ove informacije su obavezne prema Zakonu o posredovanju u prometu i zakupu nepokretnosti Crne Gore. Svi posrednici moraju biti upisani u Registar posrednika koji vodi nadležno ministarstvo.
Posjedujte ovu nekretninu već od
Fiksne kamate od: 4%
Da li ispunjavate uslove za ovaj kredit?
Saznajte za manje od 1 minut — besplatno i bez obaveza
U saradnji sa
