
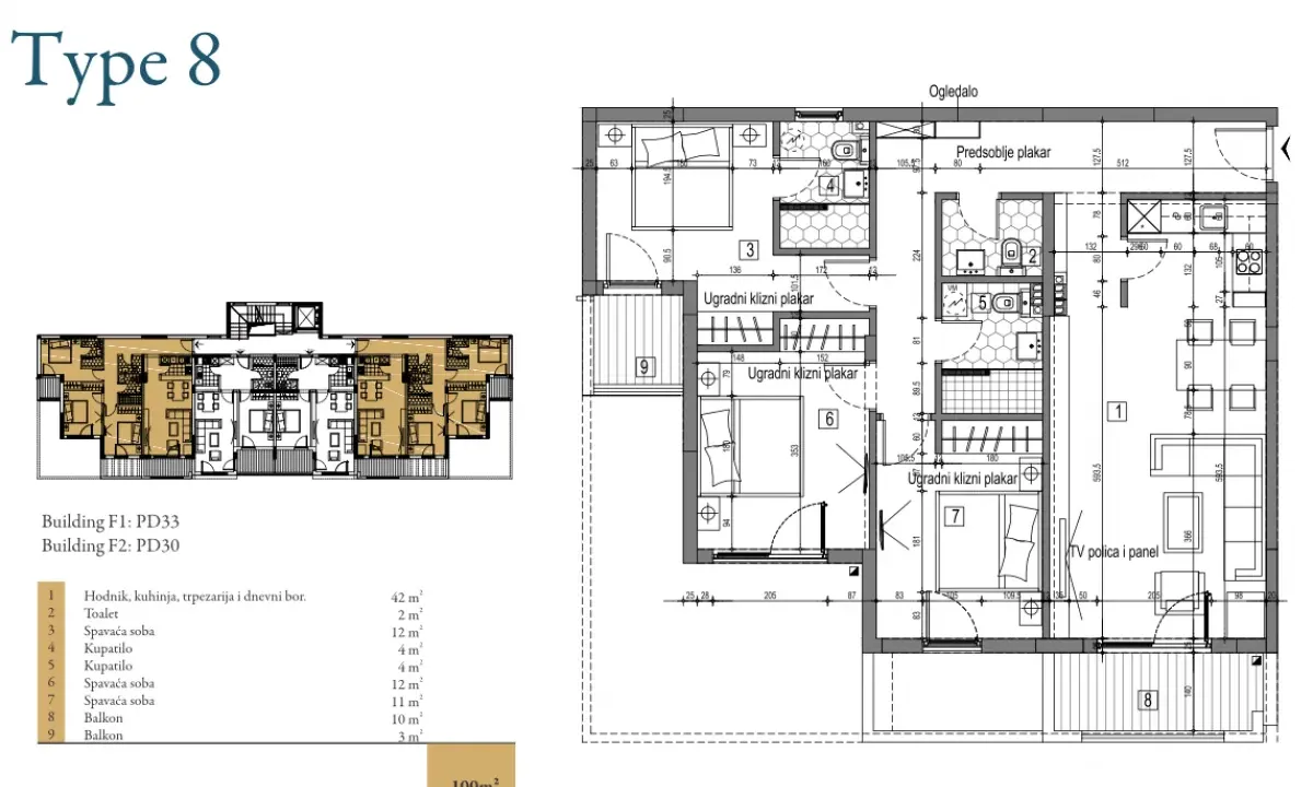
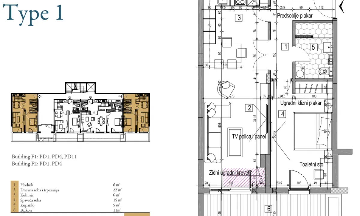
140,389 €
Prodaja, jednosoban stan, 48m², Risan, Kotor
IDD2416 Payment dynamics: 30% advance, 30% after completing the grey phase, 30% after completing the craftsmanship works, and 10% after completing the works. Possibility to add parking for an addition


















