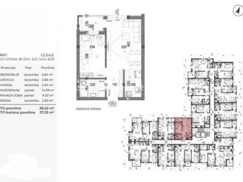
Stan
39m²
2
0
5. sprat
1
2024
Agencija
Status NekretnineCena po m²: 2781.03 €
Učešće 21,692 €
Da li ispunjavate uslove za ovaj kredit?
Saznajte za manje od 1 minut — besplatno i bez obaveza

Napomena: Ova kalkulacija je informativna. Stvarni uslovi kredita mogu varirati u zavisnosti od banke, kreditnog rejtinga i drugih faktora. Konsultujte se sa bankom za tačne uslove.
Cena ove nekretnine je 0.15% niža od prosečne cene dvosobnog stana na lokaciji Telep
Prosečna cena: 2785.29 €/m²
Ova nekretnina je 17.72% manja od prosečne veličine dvosobnog stana na lokaciji Telep
Prosečna veličina: 47 m²
Agencija (posrednik)
Status Nekretnine
Registarski broj
182
Lokacija
Novi Sad Sve Podlokacije
Telep
Kvadratura
39m²
Struktura
2 Sobe
Tip nekretnine
Stan
Ove informacije su obavezne prema Zakonu o posredovanju u prometu i zakupu nepokretnosti Crne Gore. Svi posrednici moraju biti upisani u Registar posrednika koji vodi nadležno ministarstvo.
Posjedujte ovu nekretninu već od
Fiksne kamate od: 4%
Da li ispunjavate uslove za ovaj kredit?
Saznajte za manje od 1 minut — besplatno i bez obaveza
U saradnji sa

Telep
Telep
Telep
Telep
Telep
Telep
Telep
Telep
Telep
Telep