
258,300 €
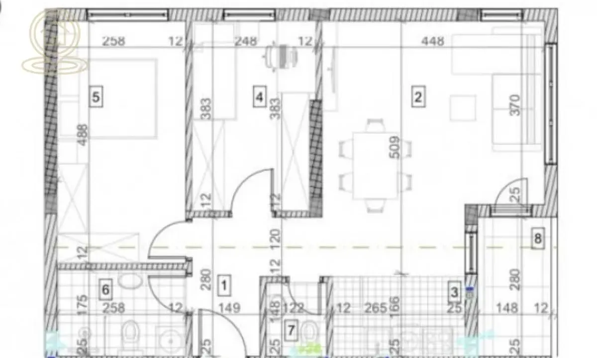
Prodaja, trosoban stan, 82m², Centar, Novi Sad
Dupleks od 82 m² u reprezentativnoj istorijskoj zgradi s kraja XIX i početka XX veka, na svega 200 m od Trga slobode i Katedrale Svete Marije. Zgrada iz XIX veka, stan je u fazi kompletne renovacije,
Julia Griaznova
Oglašivač


















