Registered apartment for sale, 49.5 m2, Patrisa Lumumbe 22, Karaburma (Belgrade).
Price: 169,000 EUR.
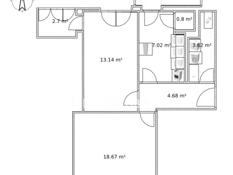
Structure: 2.5 rooms, 1 bathroom, high ground floor in a building with 4 floors.
Two rooms have direct Danube view.
Two balconies (one enclosed and insulated).
Heating: TA storage heaters + AC. Hot water: electric boiler.
Optical internet, security door, video intercom, storage/basement.
Floor plan areas (m2): living room 18.67, bedroom 13.14, kitchen 7.02, hallway 4.68, bathroom 3.62, balcony/loggia 5.76, enclosed balcony 2.70, pantry 0.80.
Official listing and viewing request: https://immo.ai.in.rs/en/
Legal representative: Tamara (Mlaw)
Website: https://mlaw.rs/
Email: [email protected]
Phone: +381 61 6654 895
Stan
50m²
1
1
Karaburma
Karaburma, Palilula Sve Podlokacije
169,000 €
3,380 € po m²
Cena po m²: 3380.00 €
Učešće 33,800 €
Da li ispunjavate uslove za ovaj kredit?
Saznajte za manje od 1 minut — besplatno i bez obaveza

Napomena: Ova kalkulacija je informativna. Stvarni uslovi kredita mogu varirati u zavisnosti od banke, kreditnog rejtinga i drugih faktora. Konsultujte se sa bankom za tačne uslove.
Cena ove nekretnine je 0% viša od prosečne cene jednosobnog stana na lokaciji Palilula Sve Podlokacije
Prosečna cena: 0.00 €/m²
Ova nekretnina je 0% veća od prosečne veličine jednosobnog stana na lokaciji Palilula Sve Podlokacije
Prosečna veličina: 0 m²
Oliver Vignjevic
Posjedujte ovu nekretninu već od
Fiksne kamate od: 4%
Da li ispunjavate uslove za ovaj kredit?
Saznajte za manje od 1 minut — besplatno i bez obaveza
U saradnji sa

Karaburma
Karaburma
Karaburma
Karaburma
Karaburma
Karaburma
Karaburma
Karaburma
Karaburma
Karaburma
Oliver Vignjevic