
78,280 €
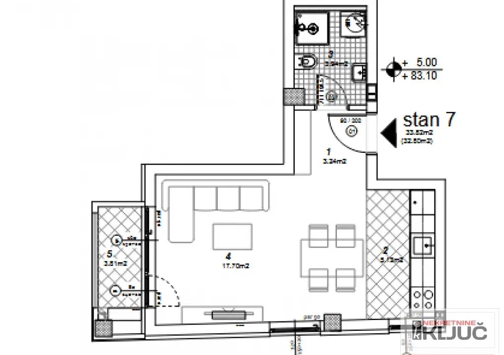
Prodaja, jednosoban stan, 33m², Bulevar patrijarha Pavla, Novi Sad Sve Podlokacije
Oglašavamo prodaju kompletno opremljenog jednoiposobnog stana od 33m2 na Bulevaru Patrijarha Pavla. Stan se nalazi na drugom spratu u zgradi sa liftom, poseduje predsoblje, dnevnu sobu sa kuhinjom i t


















